(254) 722-3523
Sign Up Login

00000 W Freeway, White Settlement, TX 76108

$650,000
  • 00000 W Freeway, White Settlement, TX 76108 Main Photo

1 Total Photos [Click to View All]

Active
MLS#20958015
STATUSActive PROPERTY TYPELand - Commercial SUBDIVISIONWestern Hills SCHOOLWhite Settlement ISD

Property Description

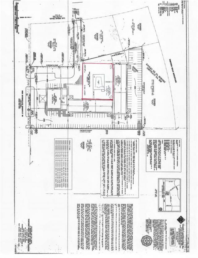
VISIBLE FROM I- 30! Unique opportunity to purchase a portion of land behind Red Roof Inn at 8520 West Freeway, White Settlement, TX 76108. Buyer will be responsible for obtaining a new survey, and re-platting. Great location for a retail center, office complex, medical or hospitality use, or an animal clinic (buyer to verify with City). Land sits just off Las Vegas Trail exit, behind new McDonald’s and KFC, with excellent visibility from I-30 and high daily traffic. The City of White Settlement is aware this land is for sale—buyers must consult with the city regarding proposed use and approval. Approximate boundaries outlined in red on photo; exact square footage to be confirmed by buyer. Rapid area growth, minutes to Downtown Fort Worth, JRB Naval Base, Parker County, and Loop 820. Not likely suitable for industrial use. Fantastic location for new development. Dream it, design it, build it!

00000 W Freeway | MLS# 20958015

This land located at 00000 W Freeway, White Settlement, TX 76108 is currently listed for sale with an asking price of $650,000. The property has approximately 0 Acres. W Freeway is located within the White Settlement ISD school district. Search White Settlement real estate on jennyarnold.kellyrealtors.com today.

Property Features

Property Type: Land - Commercial

Feature Descriptions

Days on Site: 273
Exclusions: Minerals, if any
Lot: Interior Lot
Parcel#: 04476107
Utilities: City Sewer, City Water

Local Schools

Elementary School: West
School District: White Settlement ISD

Listed By / Shown By

Listed By

Agency Name: AmeriPlex Realty, Inc.
Agent Name: Teresa Von Illyes

agent picture

Shown By

Agent Name: Jenny Arnold, Broker Associate
Agent Phone: (254) 722-3523
Agency Title: Kelly, Realtors

IDX logo

Estimate Your Payment

Estimated Payment

$ 1,636.20 per month $1,446.62 Principal & Interest $0.00 Property Tax (data not provided by mls) $189.58 Homeowner's Insurance

Change Payment Information

%
years/fixed
yearly
yearly (est.)
(Payments are an estimate and may vary by lender)
Disclaimer: All information deemed reliable but not guaranteed. All properties are subject to prior sale, change or withdrawal. Neither listing broker(s) or information provider(s) shall be responsible for any typographical errors, misinformation, misprints and shall be held totally harmless. Listing(s) information is provided for consumers personal, non-commercial use and may not be used for any purpose other than to identify prospective properties consumers may be interested in purchasing. Information on this site was last updated 03/05/2026. The listing information on this page last changed on 03/05/2026. The data relating to real estate for sale on this website comes in part from the Internet Data Exchange program of Delta Media Group MLS (last updated Thu 03/05/2026 2:24:00 AM EST) or NTREIS (last updated Wed 03/04/2026 11:48:34 PM EST) or SABOR MLS (last updated Thu 03/05/2026 12:51:55 AM EST) or CTXMLS (last updated Wed 03/04/2026 11:34:27 PM EST). Real estate listings held by brokerage firms other than Kelly, Realtors may be marked with the Internet Data Exchange logo and detailed information about those properties will include the name of the listing broker(s) when required by the MLS. All rights reserved.

ntreis logoThe data relating to real estate for sale on this web site comes in part from the IDX of the Multiple Listing Service of NTREIS. The data on this site may not be reproduced or redistributed and is only for those individuals viewing this web site. Real estate listings held by brokerage firms other than the brokers/agents with their own information using this site are marked with the NTREIS thumbnail logo and detailed information about them includes the name of the listing broker(s).

Privacy Policy / DMCA Notice / ADA Accessibility


Agent License Information: 259487

Login to My Homefinder

Pixel